ただいま施工中!!
買い取りました!
買取時
パース画
- 最寄駅
- 八戸ノ里駅 徒歩10分
- 土地面積
- 66.83㎡
- 土地坪表記
- 20.22坪
- 建物面積
- 127.74㎡
- 土地建物価格
- 3980万
- 土地価格
- 1980万
- 建物価格
- 2000万
- 買取時期
- 令和8年3月
買取時
|
|
完成!!
|
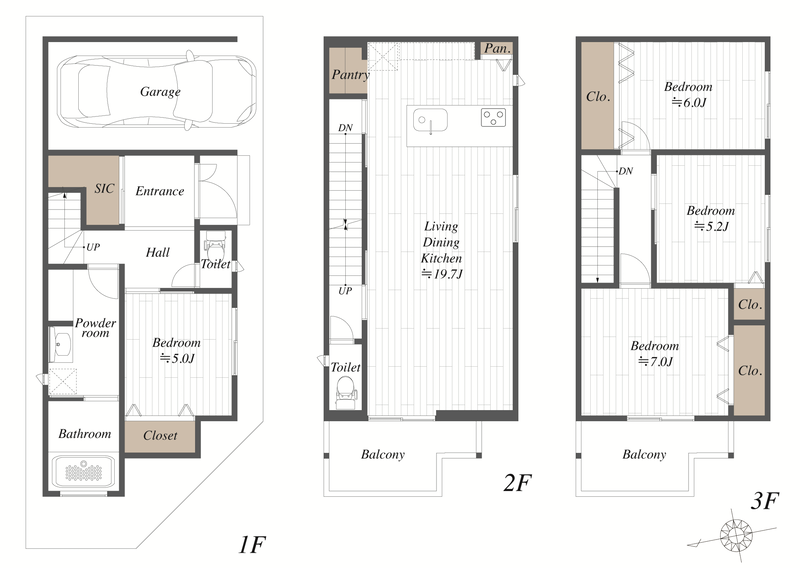
間取り
ワイエムアール物件のおすすめポイント
ワイエムアールでは、土地の高騰にも負けない、快適で開放的な3階建て住宅をご提案しています。
ワイエムアールのこだわりポイントをぜひご覧ください。
ワイエムアールのこだわりポイントをぜひご覧ください。
3階建て住宅なのに!?明るく広々とした空間
玄関だけで7畳の広さ!
料理がもっと楽しくなる、アイランドキッチン
大型バルコニーを設置
120㎡超の床面積
間仕切りしないゆったりした空間設計
1620サイズのユニットバスを採用
色彩へのこだわり
玄関にもエコカラットを活用